Hawkshead Close, Bromley
£2,400 PCM, Fees Apply To Let


Property Details

3 2 2
A freshly decorated and spacious townhouse located in a quiet close with easy access to the town centre.
This property is situated on a quiet close within easy access of public transport.

It also benefits from 2 shower rooms, garage, off street parking, gas central heating and double glazing.

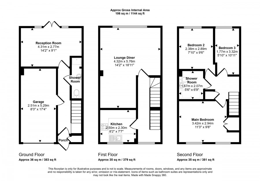
On the ground floor there is a porch, integral garage, shower room with wc and hand-basin, 2nd reception room with direct access to the garden.

The first floor offers a fitted kitchen and spacious L shaped lounge-diner.

On the 3rd floor are 3 bedrooms and shower room with wc and hand-basin.

- Disclaimer

These particular are set out as a general outline only for guidance and do not constitute any part of an offer or contract. Intending tenants should not rely on them as statements of presentation of fact, but must satisfy themselves by inspection or otherwise as to their accuracy. No person employed by this company has tested any included equipment and can give no authority to make any representation or warranty in respect of the property.

Tenant Fees

We may charge a tenant any or all of the following when required:
1. the rent;
2. a security deposit with a maximum of 5 weeks rent, or 6 weeks on a property with rent over
£50,000 per year;
3. a holding deposit of no more than one weeks' rent;
4. default fee for late payment of rent (after 14 days);
5. reasonable charges for lost keys or security fobs;
6. payments associated with contract variation, at £50 or reasonable costs incurred if higher, when requested by the tenant;
7. payments associated with early termination of the tenancy, when requested by the tenant; and
8. payments in respect of bills - utilities, communication services, TV licence, council tax and green deal or other energy efficiency charges.

David James Letting & Property Management are members of The Property Ombudsman (TPO) redress scheme. We abide by the TPO code of conduct.

We are members of SAFEAGENT and have Client Money Protection Insurance(CMP) provided via SAFEAGENT/NALS.



Council Tax Band: E
Deposit: £2,769.23
Holding Deposit: £553.84
Parking options: Driveway, Garage
Garden details: Front Garden, Rear Garden
Electricity supply: Mains
Heating: Gas Mains
Water supply: Mains
Sewerage: Mains
Broadband: Cable, FTTP
EPC Band D
Council tax band E

Location